En x-hylla (tidningsställ) att ha tidningar och böcker i! Ett snyggt, praktiskt och roligt projekt som går finfint att måla önskad färg när man är klar. Vår bygginspiratör Micke har tagit fram en beskrivning och ritning, som ni kan följa för att bygga tidningsstället
Material ni behöver:
- Hobbyskiva 300 mm bred, 18 mm tjock (Exempelvis Combiwood)
- Färg
Bra att ha:
- Såg
- Stämjärn
- Sandpapper
Gör så här:
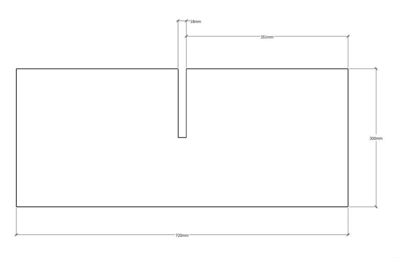
- Såga till två 720 mm långa bitar av hobbyskivan
- Såga in två spår enligt skissen till halva skivan djup med tjockleken på skivan som mellanrum, i det här fallet 18 mm, såga hellre lite för lite än för stort. Gör lika på bägge skivorna.

Ta stämjärnet och slå loss bitarna, och se till att kanten blir rak Prova att sätt ihop bitarna till ett kryss.



Du kommer troligen nu behöva sandpappret för att slipa upp ursågningen lite större, var noga, ju mer precis bitarna passar i varandra desto bättre blir hyllan. Slipa av de två skivorna och runda kanterna lite. Sätt ihop dem och måla, olja eller lacka hyllan i önskad färg.



Bolla gärna med oss kring färger, Beckers har många fina och snygga färger för ändamålet. Om ni saknar några verktyg, material eller maskiner kan ni alltid hör av er till oss. Ni kan handla och få hemskickat eller hämta i butiken färdigpackat och klart. Ni är så klart också välkommen in till oss också för att bolla idéer och hitta det ni behöver för era byggprojekt.

Håll koll på k-bygg.se/bygginspiration för fler spännande projekt du kan göra hemma!
